Z przyjemnością pragnę Państwu zaprezentować przestronny dom w urokliwym Grzybowie, zaledwie kilka kilometrów od Kołobrzegu. To idealne miejsce na prowadzenie pensjonatu lub stworzenie komfortowego domu wielopokoleniowego. Nieruchomość łączy w sobie spokój nadmorskiej okolicy z wygodnym dostępem do atrakcji turystycznych.
Lokalizacja
Grzybowo to spokojna i malownicza miejscowość wypoczynkowa w północno-zachodniej Polsce, położona w województwie zachodniopomorskim, w powiecie kołobrzeskim, w gminie Kołobrzeg. Znajduje się zaledwie 3 km na zachód od Kołobrzegu. Miejscowość ta oferuje letnie kąpielisko morskie obejmujące 710 m linii brzegowej, z czterema odcinkami plaży strzeżonej po 100 m każdy. Szeroka, czysta i piaszczysta plaża oraz ciepła woda, której temperatura jest zazwyczaj o kilka stopni wyższa niż w Kołobrzegu, stanowią idealne miejsce do wypoczynku. Okoliczne lasy sosnowe i liczne ścieżki rowerowe zapewniają doskonałe warunki do aktywnego spędzania czasu na łonie natury.
Budynek
Oferowany dom, położony w Grzybowie koło Kołobrzegu, ma powierzchnię 337 m² i znajduje się na płaskiej, ogrodzonej działce o powierzchni 1640 m², zbliżonej kształtem do prostokąta o wymiarach około 27,5 m x 60 m.
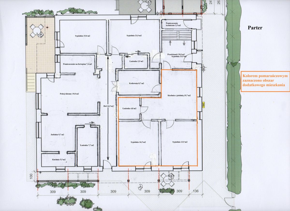
Na parterze znajdują się dwa mieszkania. Pierwsze mieszkanie o powierzchni 55 m² składa się z dwóch sypialni, kuchni z jadalnią oraz łazienki ( niezależne liczniki). Drugie, większe mieszkanie o powierzchni 116 m², obejmuje przestronny salon o powierzchni 26,5 m², jadalnię (9,7 m²), kuchnię (6 m²), łazienkę (7,7 m²) oraz dwie sypialnie - jedną o powierzchni 15 m² oraz drugą o powierzchni 24 m² z prywatną łazienką.
Na piętrze znajduje się część, która w sezonie letnim pełni funkcję pensjonatu. Składa się ona z dwóch pokoi standard z prywatnymi łazienkami i wspólną kuchnią, a także trzech niezależnych apartamentów. Każdy apartament składa się z dwóch sypialni, kuchni, łazienki oraz przedpokoju, a z każdego wynajmowanego pokoju i apartamentu jest wyjście na balkon lub taras.
Dom został wybudowany metodą tradycyjną z przewagą cegły max szczelinowej, a dach jest pokryty papą. Dom wyposażony jest w dwa niezależne źródła ogrzewania - dwa piece ImmerGas Zeus po 24 kW każdy. Jeden piec ogrzewa niezależne mieszkanie na parterze, a drugi większe mieszkanie na parterze oraz całe pierwsze piętro.
Teren posesji jest pięknie zaaranżowany z licznymi nasadzeniami. Na działce znajdują się piaskownica, huśtawki, altanki, miejsce grillowe, miejsce na ognisko oraz boisko do gry w badmintona i siatkówkę. Na terenie nieruchomości może zaparkować 10 samochodów osobowych.
Atrakcje w okolicy
Jezioro Resko, oddalone o 12 km, zachęca do odwiedzenia swoimi pięknymi widokami. Można tam odpocząć, zażyć świeżego powietrza oraz wędkować. To raj dla fanów tej dyscypliny, gdzie można złowić takie ryby jak wzdręga, jazgacz czy ukleja. Latem jezioro jest popularne wśród windsurferów i kitesurferów.
Okolica oferuje również rozbudowaną sieć szlaków turystycznych, pieszych i rowerowych, prowadzących m.in. do Dźwirzyna, Mrzeżyna, Kołobrzegu oraz latarni morskiej w Gąskach. Trasy są dobrze oznakowane tablicami i idealne dla fanów nordic walking, oferując świetne warunki do aktywnego wypoczynku.
W pobliżu znajduje się również Klub Jeździecki Kaja, oferujący jazdy konne na maneżu oraz po plaży. Przy niepogodzie można spróbować swoich umiejętności w krytej hali.
Zapraszamy do kontaktu i umówienia się na prezentację tego wyjątkowego domu. Po prezentacji zaproponuj swoja cenę.
1 799 000,00 PLN (5 338,28 PLN)
Dom idealny dla dużej rodziny lub jako pensjonat
Dom (Wolnostojący) na sprzedaż,
Grzybowo, Szkolna
Dane szczegółowe
- Typ transakcji: sprzedaż
- Typ nieruchomości: Dom
- Lokalizacja: Grzybowo, Szkolna
- Powierzchnia:337 m2
- Liczba pokoi: 13
- Rok budowy: 1988
- Piętro: 1 z 1
-
Powierzchnia działki:
1 640 m2
- Numer oferty: 3M861848
- Cena: 1 799 000,00 PLN
- Cena za m2: 5 338,28 PLN
Kontakt z agentem: KASZUBSKIE CENTRUM NIERUCHOMOŚCI/3 MIASTO NIERUCHOMOŚCI
Kaja Smutek
Opis nieruchomości
Mapa
Kontakt z agentem
KASZUBSKIE CENTRUM NIERUCHOMOŚCI/3 MIASTO NIERUCHOMOŚCI